Готовые проекты и проектирование домов
Вы можете приобрести готовые проекты, либо заказать проектирование по вашим индивидуальным размерам
Стоимость проектирования каркасного дома составляет 460р за м2 по полу.
Например, стоимость проектирования 2х этажного дома 6х6 составит-33 120 рублей
Например, стоимость проектирования 2х этажного дома 6х6 составит-33 120 рублей
При заключении договора на строительство проект дома идет в подарок!
В проект входит:
1. Эскизная часть проекта:
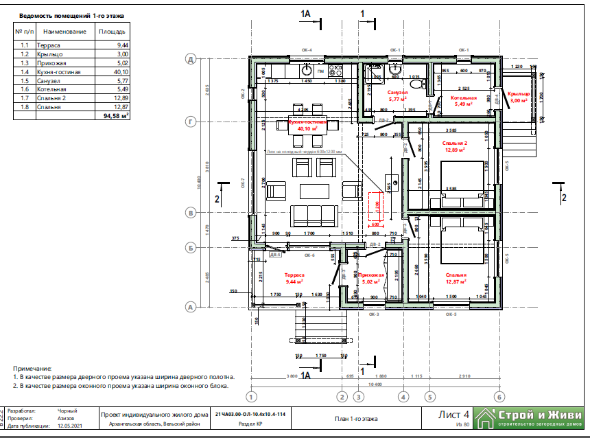
- Планировки этажей
- План кровли
- Визуализация дома с разных ракурсов
- Фасады с четырех сторон
- Разрезы
2. Конструктивный раздел:
- План фундамента - свайное поле
- Схема устройства ростверка
- Схемы сборки перекрытий
- Схемы сборки стен
- Схемы сборки стропильной системы
- Спецификация пиломатериала
- Узлы силового каркаса
- Все пироги: полы, перекрытия, стены, кровля.
3. Карта раскроя пиломатериала
4. 3D модель (2 bimx файла) визуализация на компьютере, планшете или телефоне.
Наша компания "Строй и Живи 35" также занимаемся качественным строительством каркасных домов под ключ по приемлемым ценам.
Остались вопросы?
Получите бесплатную консультацию у наших специалистов
Свяжитесь с нами
Адрес: г. Вологда. ул.Ветошкина д.76, к9
на территории бывшего хладокомбината
E-mail: svfundamentvologda@gmail.com
Реквизиты ООО «СТРОЙ И ЖИВИ 35»
ИНН/КПП 3525477127/352501001
ОГРН 1223500001438
160011, Вологодская область, г Вологда, Козленская ул, д. 71, кв. 55
Директор Галкин Евгений Николаевич
ВОЛОГОДСКОЕ ОТДЕЛЕНИЕ № 8638 ПАО СБЕРБАНК Г. Вологда
Р/с 40702810812000002416
К/р 30101810900000000644
БИК 041909644
на территории бывшего хладокомбината
E-mail: svfundamentvologda@gmail.com
Реквизиты ООО «СТРОЙ И ЖИВИ 35»
ИНН/КПП 3525477127/352501001
ОГРН 1223500001438
160011, Вологодская область, г Вологда, Козленская ул, д. 71, кв. 55
Директор Галкин Евгений Николаевич
ВОЛОГОДСКОЕ ОТДЕЛЕНИЕ № 8638 ПАО СБЕРБАНК Г. Вологда
Р/с 40702810812000002416
К/р 30101810900000000644
БИК 041909644
Отправьте сообщение
Наши специалисты свяжутся с вами для обсуждения деталей